・目次・
★ご挨拶・プロジェクトを立ち上げた背景
★このプロジェクトで実現したいこと
★私たちの地域(コワーキングスペース)のご紹介
★資金の使い道
★実施スケジュール
★リターンについて
★最後に
*************************************************************
★ご挨拶・プロジェクトを立ち上げた背景★★★★★

はじめまして!
大島真人(おおしま まさと)と申します。
「年中夢求・年中夢中」
という言葉が大好きな36歳独身です!
これまでに障害福祉サービス事業をはじめ、車やバイクの卸販売、イベントプロデュース業、バルーン販売、飲食店、海の家等の経営、サラリーマンの経験があります。
時には失敗や挫折することもありましたが、常日頃から「年中夢求・年中夢中」を大切にし、ワクワクドキドキ夢に向かって挑戦し続けています!
突然ですが、皆さん、忘れていませんか?
子どもの頃、無邪気に夢中になって遊んだときのワクワク感やドキドキ感を…
私も大人になるにつれこの気持ちを忘れかけていました。
コロナ渦で何もかも自粛した生活になってしまい、
やりたいことや夢があってもなかなか行動に移せずに熱い想いを秘めている方は多いと思います。
起業を考えているけど…
・具体的にどうしたら良いかわからない。悩んでいる。
・新型コロナウイルス感染症の感染拡大に伴い、 事業が上手くいくか不安。
・人脈もなく行き詰まっている。など
そういう方々の夢を夢で終わらせない!を企業コンセプトに
今年、令和3年3月31日に株式会社MAAATを設立しました!
地元、金沢市を主軸に
・これから就職する学生や起業を考える若者
・社会人(主婦・主夫)
・既に起業している方々
を応援、支援をするために「コワーキングスペース」事業を開始いたします!
私も皆様と一緒に成長したい!!そんな思いが多いにあります!
★このプロジェクトで実現したいこと★★★★★
2021年8月
学生や社会人、主婦(主夫)やフリーランスの方々など、365日24時間色々な人が集える場所
「コワーキングスペース365 KANAZAWA」をオープンしたい!!
(コロナの影響もあり、少々オープン時期がズレる可能性もありますが)

集中して働く場所でもあり、リラックスして集う皆さんと雑談する場所でもあり、様々な年齢層の方々が交流する場でもあり、人と人が繋がり夢が生まれる日本一ワクワクする場所を目指したいと思っています!
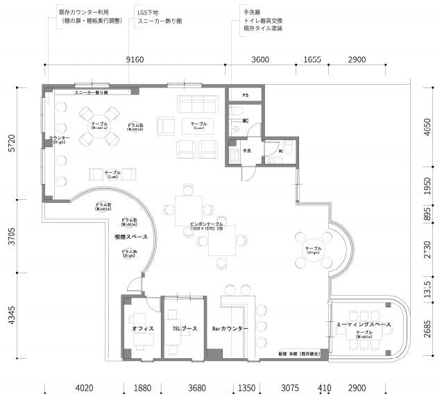
<< フロアデザイン >>


なので、テーブル席でもドラム型テーブルやピンポンテーブル、カウンターテーブル等色々な種類を取り揃えたいと考えています。また、ミーティングルームや撮影ブース、電話ブースも設けたいと考えています。スニーカーも飾っちゃいます!!
▲ピンポンテーブルとドラム型テーブル
<<施工前の様子>>





⇩
⇩⇩
⇩⇩⇩ 6/3 現状の様子です!建物の構造を活かして内装が始まりました!!


ただ、単なるコワーキングスペース(場所・スペース)だけでは終わらせたくないと考えています!
メインとしたいところは、
年中、夢を求めて叶えるためにワクワクする人やコト、情報に共感してもらい、その方々とコミュニティを形成すること。諦めてしまった夢や想いの再想起、これから挑戦したいことの背中を押してあげられるような場所であることです!!
人と人との繋がりを大切に、コロナ渦の今だからこそ、オンラインを通じて全国に“楽しい”、“面白い”を届け、 コミュニティを生み出し続けることで、地元金沢市(石川・北陸)から全国各地に向けて、地域・全国を盛り上げて元気にしたい!!と考えています。
具体的には、
本社所在地の石川県だけでなく、全国の方々を応援するという強い意志のもと、YouTubeや各SNSを活用し、挑戦する人やワクワクに満ちた情報をストーリー性のある映像として配信し、オンラインを多様に活用します。
オープンまでは、オープンまでのプロセスやオープン後の活用方法、弊社の事業内容などを発信し、少しでも何かしらの参考・きっかけになってもらえたらと考えてます!
オープン後は、コワーキングスペースに集まる方々の夢の実現を応援する過程をYoutube(MAAATチャンネル)やMAAAT各SNS(Instagram・twitter・TikTok)、MAAATのホームページで発信していきたいと考えています。また、コワーキングスペースを利用する方々と動画を視聴する方々との交流や意見交換などをしやすくする仕組みを作り、知識や情報量の向上や人脈を広げられるような運営をしていきたいと考えています。
▲ YouTube『 MAAATチャンネル 』
「 MAAATチャンネル 」で検索!!
KintoneやLINEなどのシステムも活用し、現地の利用者とオンラインのコミュニティを効果的に繋げ、リアル&オンラインのイベント、また、さまざまなことが学べる講習会を企画・開催を予定しています。
ときには、専門知識を持つ講師やアーティストなどにも参加していただき、それらもオンラインで配信することで全国の強い想いをもつ方々に共有を図り、繋がりを狙います。同時に既に起業している全国の方々からの感想や意見を取り上げて配信することも考えています。
------------------------------------------------------------------------------------------
○沢山アイデアが浮かんでいるけど、カタチにするやり方が分からない!!
○誰かに聞いてもらいたい、相談したい!!
↓↓↓↓↓↓↓↓↓↓↓↓↓↓↓↓↓↓↓↓↓↓↓↓↓↓↓↓↓↓↓↓↓↓↓↓↓↓↓↓
ぜひ、コワーキングスペースで一緒に話をきかせてください!!
機材やノウハウはあります。若い感性を活かして弊社で一緒につくってみませんか!?
一緒に挑戦しましょう!!!
★私たちの地域のご紹介★★★★★
石川県金沢市は、県のほぼ中央に位置する人口約46万人の市です。
加賀百万石の城下町として栄えたことで知られています。「金沢城」や日本三大名園の「兼六園」が有名で、城下町の雰囲気も残っています。また、加賀友禅や金沢箔、九谷焼などの伝統工芸も受け継ぐ「北陸の小京都」と呼ばれています。JR北陸本線、IRいしかわ鉄道、北陸鉄道石川線・浅野川線が通り、北陸新幹線も利用可能です。
<<コワーキングスペース情報>>

「コワーキングスペース365KANAZAWA」
〒921-8027 石川県金沢市神田2丁目3-21 ヒリックスビル2F
▲外観 台数に限りがありますが、駐車場完備です!!
▲建物正面 2Fにコワーキングスペース365KANAZAWA内装工事中です!
階段・エレベーターご利用出来ます!!
JR金沢駅から車で10分!
周辺には、多くの会社や住宅が立ち並び、バス停もあります。
また、金沢工業大学等の大学や美容系・デザイン系の専門学校が沢山あります。
ふらっと寄っていただける立地にありますので、ぜひお立ち寄りください!!
★資金の使い道★★★★★
・備品購入(ドラム型テーブルやピンポンテーブル等各種テーブルや椅子など)⇒約60万円
・パソコンや複合機、電話機購入 ⇒約17万円
・入退室管理システムの設備導入 ⇒約45万円
・CAMPFIRE掲載/決済手数料 ⇒約28万円
★実施スケジュール★★★★★
5/25~:コワーキングスペース365KANAZAWA 内装施工
6/8 〜 :クラウドファンディングスタート
7/23 :クラウドファンディング最終締切
8/8 :コワーキングスペース365KANAZAWA オープン
9/1 〜:リターン発送開始
★リターンについて★★★★★
◇【コワーキング365KANAZAWAお試し利用1か月 * 2,500円】
◇【コワーキング365KANAZAWA利用6か月 * 10,000円】
◇【株式会社MAAAT 大島とのトークセッション30分&1か月パス付き * 5,000円】
◇【学生・フリーランス応援プラン * 25,000円】

☆企業様向け☆☆☆
◆【★ 365シルバープラン * 50,000円】
◆【★★ 365ゴールドプラン * 150,000円】
◆【★★★ 365全力応援! プラチナAコース * 150,000円】
◆【★★★ 365全力応援! プラチナBコース * 150.000円】
◆【★★★ 365全力応援! プラチナCコース * 150,000円】
★最後に★★★★★
私を含めて弊社で働くスタッフ全員、
「年中夢求・年中夢中」
いつになっても子どもの頃、無邪気に夢中になって遊んだときのワクワク感やドキドキ感を忘れないで挑戦していく人生を送りたい!
と考えています。
コワーキングスペースに集う方々が発信源となってワクワクする人やコト、情報を発信すること。
全国の皆様に共感してもらいながら繋がりを大切にし、皆さんと共に成長出来るようにすること。
全国に“楽しい”、“面白い”コンテンツを配信し続けること。
以上を目指します!一緒に挑戦します!!
「コワーキングスペース365KANAZAWA」が大人の皆さまにとって楽しい場所になれば最高です!!
そしてふらっと寄りたくなる場所となれば何よりです!!
<All-in方式の場合>
本プロジェクトはAll-in方式で実施します。目標金額に満たない場合も、計画を実行し、リターンをお届けします。