北陸の人達がサウナ好きになる原点の店舗を作り上げ、サウナの良さをもっと沢山の方に知って頂きたい。
理想の店舗を創るためには、100万円が必要になります。
僕のサウナ事業チャレンジを応援お願い致します!
【ご挨拶】

初めまして。中田 諒(なかだ りょう)28歳です。
5年前からサウナ好きになりましたが、集団サウナの欠点、衛生面、環境面だけかなり気がかりで、パーソナル(個室)サウナ施設があればいいなと思いそれから2年後、本格的にパーソナル(個室)サウナの事業計画を考え始めました。
施設を作るには、資金も必要になってくるのと、プラス衛生管理の知識が必要になってなってくると思い、元々働いていた飲食業をやめ、3年前に清掃業に転職、フリーランスとして清掃業を始め、資金も少しづつ溜まっていき、清掃に関して知識も豊富になり衛生管理も自身で徹底できるような技術を身に着けました。
フリーランスになって3年間、モチベーションを高く持ち続けられたのは、このサウナ事業を成功させたいとの想いでした。
今時期、物価の高騰、円安等で皆様の日々の生活が苦しくなる一方、少しでもコスパ良く日々の生活の疲れを癒せるきっかけをサウナで作れたらいいと思い
今回サウナ施設の立ち上げに挑戦させて頂きました。
「パーソナルサウナ事業のテーマ」
サウナに行ったことないけど行ってみたい方、サウナの入り方や''ととのい''方の知識が少ない方、サウナ初心者に特化したお店
サウナ部新人体験入部のような形でサウナ体験ができるサービス
健康に特化したフード販売、美容に特化したドリンク販売でお客様の身体すべてを
”ととのう”状態にする。
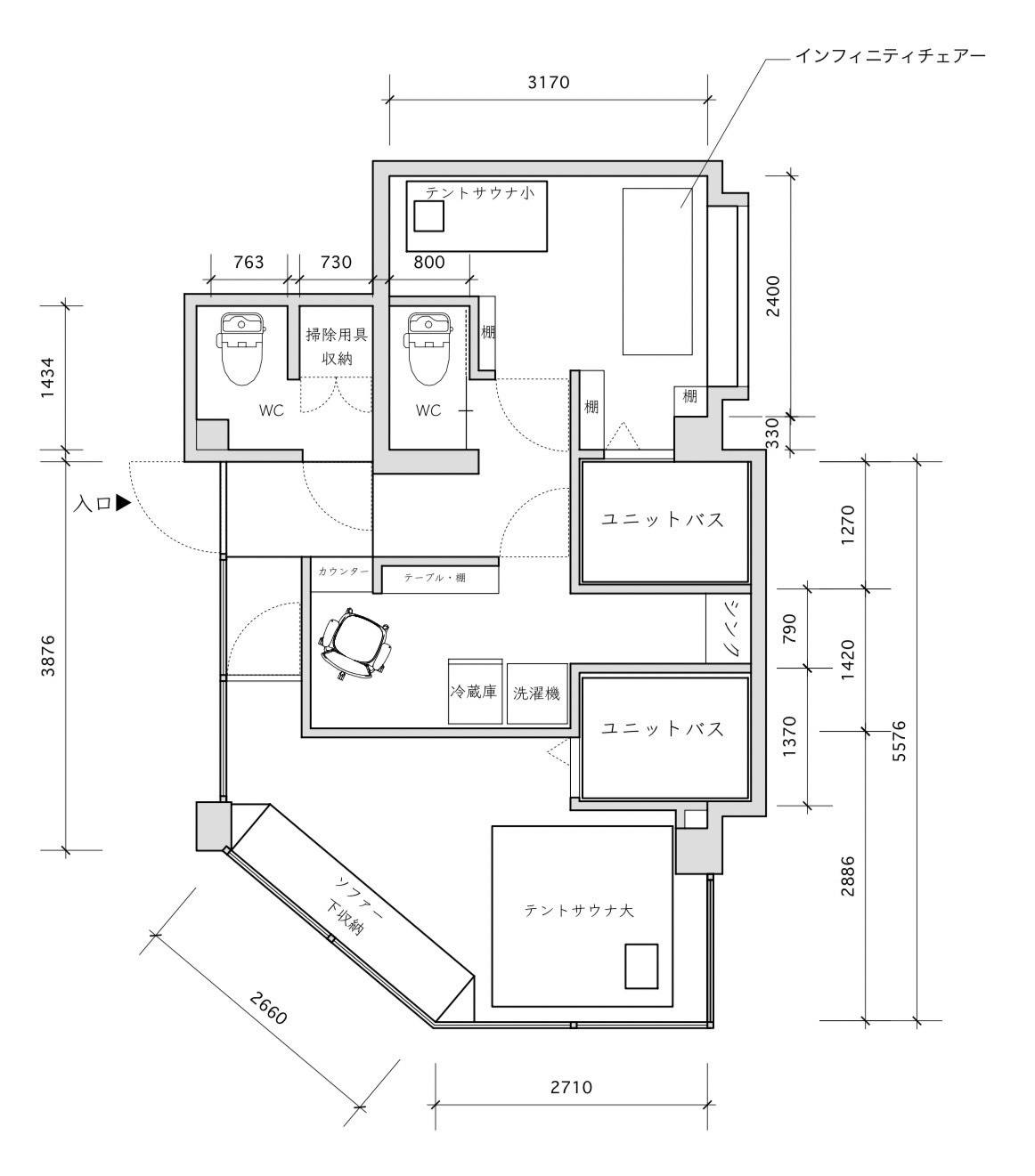
【個室サウナ内装紹介】


●カウンター、廊下●
受付カウンターにて受付行い、各部屋に案内する。たんばく質たっぷりで脂質が少ない健康トルティーヤ販売予定。さっぱりした美容、健康にも良いスムージードリンク販売予定。
●サウナ●

1人専用テントサウナ(個室) 2人専用テントサウナ (個室) 計2部屋個室サウナ室
テント内は、高級感あふれる木の椅子に、ずっと居座りたくなるような調光、湿度、温度、香りの管理が"ととのった"テントサウナ室"
Q, 何故テントサウナなのか。
A, サウナ室内が80〜90度でも熱風が強く感じにくいのでサウナ室内での会話もしやすい
今回のサウナ事業の顧客ターゲット層が、「サウナに行ってみたいけど、、、」というまだサウナ経験が少ない方達、初めて利用者になります。テントサウナは熱風を強く感じずサウナを利用するのでサウナ初心者にかなり評判がいい。
ストーブ種類 セルフロウリュー式
サウナ経験豊富な方が来られてもロウリューするために作られたNISAのストーブであればすぐに虜になります。
●水風呂
特注で発注したユニットバスで水風呂を堪能してもらいます。
自分だけの最高な水風呂の時間を堪能できます。水風呂に抵抗がある方、サウナ初心者でも''ととのう''を体験できるように水風呂の温度をお客様自身で15~25℃調整できる仕様になっております。
20~25℃ですと水風呂に抵抗のある方でも苦がなく、水風呂に入れます。
●休憩スペース
内気欲でインフィニティチェアー、室内にてBluetoothでお好きな音楽を聴いて頂き、扇風機の設置、お客様だけの特別空間で"ととのう"を味わい下さい。
※若干の仕様の変更等が、ある場合も御座いますので、ご了承下さい。
●アメニティグッツ
サウナハット、小タオル2枚、ドライヤー、ティッシュペーパー、綿棒、化粧水、ヘアーブラシ 等
各部屋に備え付けしてあります。
●韓国式羊巻き

韓国のサウナ利用で流行になった羊巻きを今回のサウナ事業に取り入れ、お客様にわかりやすい説明書を作成し、ご自身で羊巻きを作って頂き、サウナご利用して頂きます。
●”ととのう”メニュー表

サウナ初心者の方でも安心して”ととのう”ことができるよう部活のメニュー表のような
”ととのう”までの説明書をを入室前にお渡しいたします。
●施設概要●

店舗名 プライベートサウナ ととのう
所在地 石川県金沢市城南2ー42ー8 2階
営業時間 18:00~2:00 土日祝 9:00~2:00
料金(税込み価格)
45分コース 1,580円 70分コース 2,480円 100分コース 3,480円
・水素水飲み放題 日額 500円 月額会員 980円
・手ぶらセット(3種類のシャンプー、リンスの中からお好きな1個選んでもらう、ボディソープ バスタオル大1枚 小1枚)
日額 500円 月額会員 980円
・オロポ飲み放題 日額 500円
・男女の利用可能
●サウナに感謝

5年前の当時、なにをするにも向上心も少なく、途方に暮れていた僕が、唯一ハマったものそれがサウナでした。サウナに通う頻度は、年々増えていき月に1回くらいだったのが今では最低でも週に2,3回行くようになりました。
サウナに入っている間は、自問自答ができ、一つ一つ自分の壁に対して向き合えるそんな空間でした。日々の日常の悩みや仕事に対してのアイディア等、普段の生活では思いつかないことなどが、サウナに行き水風呂に入ってから椅子に座って目を閉じていると何故か思い浮かんだり、悩みが吹き飛びます。
当時、人生途方に暮れていた僕を救い、この3年間目標に向かって走りづつけて来たのは、サウナのおかげだと思っています。そんなサウナに恩を感じております。なのでもっともっと沢山の人にサウナの良さを知ってもらいたい。沢山の人にサウナを好きになってもらいたい。
僕がそうだったように。
【北陸の方達がサウナ好きになった起源の店舗にしたい】

初めてサウナにきたお客様に対してご満足いただけるようなサービスにしていく予定です。サウナに対してお金を出してもいいなと思ってもらえるような満足度を提供。
この理念の中、お客さんの笑顔を獲得していきたいと考えております。
この3年間一生懸命サウナ事業に対して考えてきました。
僕自身今まで頑張ってこれたのは、サウナ事業を行うためでした。
サウナ事業に人生全てをかけたいと思っています。
失敗したらどうしようって考える時は、沢山あります。
でも、必ずやり切ります。
それくらいの覚悟を持って望みます。
北陸のサウナの原点になるこのサウナ事業にどうか皆様お力貸してください。
開業までのスケジュール
2023年2月 開業場所の決定
2023年3月 工事開始
2023年4月 工事終了(消防の許可取得、公衆浴場許可取得、飲食店許可取得)
2023年5月 プレオープン,本オープン
資金の使い道
サウナ施設の工事費
リターン製作費
プラットフォーム手数料
<募集方式について>
本プロジェクトはAll-in方式で実施します。目標金額に満たない場合も、計画を実行し、リターンをお届けします。