宿泊に体験型コンテンツを組み込むことによって、宿泊をさらに特別な体験にしようといったプロジェクトです。

今回はホテルズミステリー第一弾として、千葉県いすみ市の自然に囲まれた一棟古民家で、従来にない新しい、古民家ホテルと謎解きを融合させた新感覚の体験型宿泊施設を建設します!!


私自身ホテルに泊まる機会が多く、過去300以上のホテルに宿泊してきたのですが、私にはホテルで過ごす時間が味気なく感じることが多く、いわゆる「泊まるだけのホテル」に対して安くない金額を支払うことに毎回疑問を感じていました。
ホテル予約サイトを見ても一見似たようなホテルが多い印象です。ただ一方で素晴らしい体験ができる宿泊施設はたくさんあります。私自身もたくさんの大好きなホテルや旅館があります。
ただその多くがあまりに高価で、一般的な会社員にとっては完全に贅沢の領域、年に行けても数回のレベル。ビジネスホテルに泊まることは可能だが、「特別な体験」にはなりません。

私はここに違和感を感じていて、どうにかビジネスホテルなどの「泊まるためのホテル」でも「特別な非日常体験」を味わうことはできないか?と考えてました。
ただそういったホテル目線で見てみると、日々の来客業務をこなすだけで精一杯で、+αの体験に投じているリソースなんてない。
そこで、ホテルにとっても負担のない形で、ユーザーに身近に特別な体験を感じてもらうモノとして考えたのが「謎解き」です。
いわゆる「リアル謎解きゲーム」は、身近で簡単に参加できるのにも関わらず、毎回忘れられない特別な思い出ができます。
謎解きゲームとは、様々なシチュエーションにおいて、与えられた情報をもとに、謎を解明することによってゲームクリアを目指す、体験型のコンテンツです。
最近ではキット形式で自宅で楽しめるものも登場しています。今ではTVの企画でも取り上げられ、多くの芸能人が趣味として楽しんでいることから、知名度も上がってきています。
謎解きには当然ですが制限時間が設けられています。もちろんプレイ中は夢中になってしまうのですが、プレイ終了後現実に戻ってしまう感覚が少し寂しく感じてました。
謎解きにも、「さらなる没入感」と「時間を気にすることのない自由な環境」があったらと考えていました。

実は「宿泊」にとって「謎解き」はとても相性が良く、ユーザーとホテルの双方に嬉しい組み合わせなんじゃないかと思っています。
これが”宿泊×謎解きプロジェクト”「ホテルズミステリー」を立ち上げた背景です。
↑記名記載許可有り
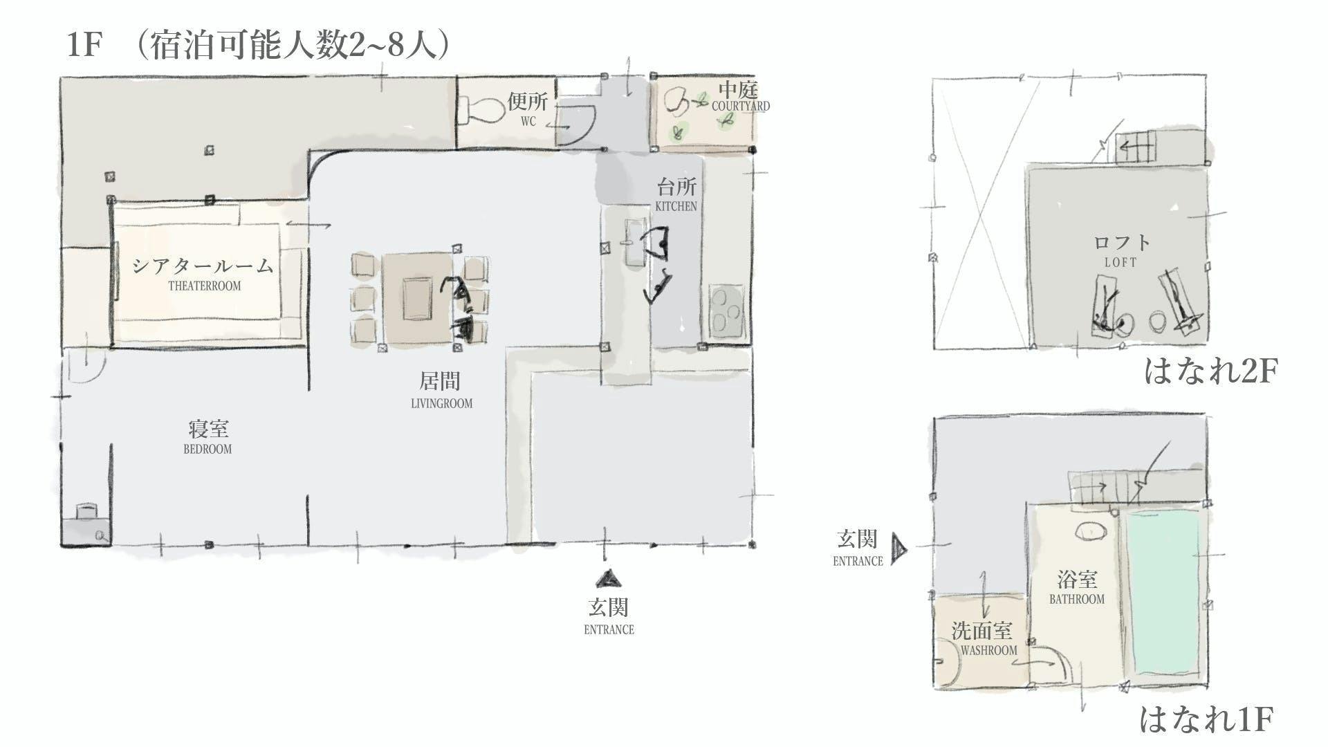
【平面図】
【パース】


【建築地】


チェックイン〜チェックアウトの流れの1例をご説明します。
メインコンテンツ自体は3時間程度〜を想定しています。コンテンツの最中にお食事、お風呂などの行動も自由にしていただくことができます。
※あくまで1例です。お客様に合わせて、様々な形でお楽しみいただけます。




ホテルズミステリーでは、日本のすべてのホテルを特別な体験ができる場所にしたいと思っています。
そのためにまずは第一弾の古民家ホテルでの成功を収めること。その後は、東京のゲストハウスやビジネスホテルなど、皆さんが当たり前のように「泊まるだけ」として使われているホテル、ホステルに向けて、ホテルズミステリーのコンテンツを提供して「どこでも特別な宿泊体験ができる状態」を目指していきたいと思っています。
前述した通り、上記のようなホテルは、ユーザー目線で見ると宿泊って"泊まるだけ"にしては高価だと思うことも少なくないかと思います。
逆にホテル目線で見てみると、現状は理解しているが、そこに費やす労力も費用もない、というのが実情だと思ってます。
だからこそホテルズミステリーでは、ユーザー、ホテル、双方に寄り添って特別な体験を簡単に、そして身近に楽しんでほしいと考えています。
ポイントは、両方の課題を解決すること。

日常の仕事や家庭に不満も鬱憤もあるけど、ホテルという「非日常への扉」を通して「憧れの世界」に入り込める。
「泊まる」からこそ世界にどっぷり入り込めるし、なかなか終わりもこない。そんな世界を目指していきます!

2023年冬オープン予定!!
↓資金使い道↓
・フルリノベーション施工費
・広告費・HP製作費
・ご支援返礼品資金
・CAMPFIRE手数料
→総費用10,000,000円のうち一部をご支援から使用させていただきます。
はじめまして!宿泊×謎解きプロジェクト"ホテルズミステリー"代表の大澤です!

建築の専門学校出身の協力者の元、建築士、インテリアデザイナー、エンジニア、設計や施工管理経験者がこのプロジェクトに携わっております。
最後までご覧いただきありがとうございます。少額でもご支援いただけましたら大変励みになります。少しでも面白いと思っていただけましたら是非実現に向けてご協力下さい。宜しくお願いいたします!
<募集方式について>
本プロジェクトはAll-in方式で実施します。目標金額に満たない場合も、計画を実行し、リターンをお届けします。





